Trong thiết kế và quản lý kho hàng, việc lựa chọn sơ đồ phù hợp là bước nền quan trọng giúp tối ưu không gian và nâng cao hiệu quả vận hành. Tùy theo quy mô và đặc thù sử dụng, mỗi kho sẽ phù hợp với một kiểu bố trí khác nhau từ kho nhỏ, đơn giản đến kho quy mô lớn, chuyên nghiệp. Vì thế, bài viết này sẽ tổng hợp các mẫu sơ đồ kho hàng phổ biến nhất hiện nay, giúp doanh nghiệp, nhà xưởng hoặc trung tâm logistics dễ dàng lựa chọn cách bố trí phù hợp với nhu cầu thực tế.

Nội dung bài viết
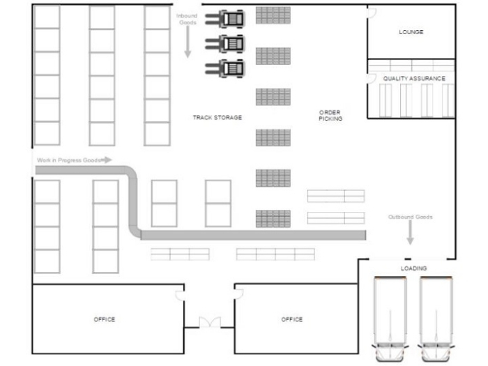
Các khu vực quan trọng trong sơ đồ kho hàng lưu trữ
Khu vực bố trí kệ hàng
Khu vực kệ hàng là trung tâm của kho, nơi lưu trữ và bảo quản toàn bộ hàng hóa. Việc sắp xếp kệ cần dựa trên loại hàng, tải trọng và tần suất xuất nhập. Các dãy kệ thường bố trí song song, có lối đi hợp lý để xe nâng dễ thao tác. Lên sơ đồ bố trí khoa học sẽ giúp tối ưu diện tích, dễ kiểm kê và giảm thời gian di chuyển hàng.
Các lối đi trong kho
Lối đi đóng vai trò kết nối giữa các khu vực, đảm bảo sự lưu thông an toàn cho xe nâng và nhân viên. Cần thiết kế lối đi chính rộng, lối phụ hợp lý để tiếp cận mọi dãy kệ. Ngoài ra, nên bố trí biển chỉ dẫn và vạch an toàn nhằm hạn chế va chạm trong quá trình vận hành, đặc biệt tại các góc cua hoặc giao nhau.

Khu xuất – nhập hàng
Đây là khu vực đầu vào và đầu ra của kho, sẽ đặt gần cửa lớn để thuận tiện cho xe tải bốc dỡ. Khu nhập hàng dùng để kiểm tra, phân loại hàng hóa trước khi lưu trữ, còn khu xuất là nơi tập kết hàng giao cho khách. Việc bố trí thông minh giúp tránh ùn tắc, rút ngắn thời gian xử lý và đảm bảo luồng hàng một chiều.
Khu đóng gói, phân loại, kiểm tra
Khu này dùng để xử lý hàng trước khi nhập kho hoặc xuất giao, bao gồm khâu đóng gói, dán nhãn và kiểm định chất lượng. Khu đóng gói ở gần khu xuất – nhập để tiết kiệm di chuyển và thuận tiện thao tác. Nên trang bị bàn thao tác, giá để hàng và ánh sáng tốt để đảm bảo hiệu suất và độ chính xác trong quá trình làm việc.

Khu vực phụ trợ
Khu phụ trợ gồm văn phòng điều hành, khu kỹ thuật, khu nghỉ nhân viên và kho dụng cụ. Đây là nơi hỗ trợ quản lý, giám sát và vận hành kho hiệu quả. Dù không chiếm diện tích lớn, khu phụ trợ cần bố trí hợp lý, đảm bảo thông thoáng, an toàn và thuận tiện kết nối với khu chính để tối ưu quy trình làm việc.
Xem thêm bài viết: Tổng hợp các mẫu kệ kho gia đình phổ biến và hiện đại nhất hiện nay
Tổng hợp các mẫu sơ đồ kho hàng phổ biến nhất 2026
Mẫu sơ đồ kho hình chữ I
- Đặc điểm: Bố trí đơn giản, khu nhập hàng và xuất hàng nằm ở hai đầu đối diện nhau, hàng di chuyển một chiều.
 - Ưu điểm: Giảm giao cắt luồng hàng, dễ kiểm soát quy trình, tiết kiệm thời gian bốc dỡ và di chuyển.
 - Ứng dụng: Phù hợp cho các kho có diện tích dài, lưu lượng hàng hóa lớn như kho sản xuất, kho logistics, kho trung chuyển.
 

Mẫu sơ đồ kho hình chữ L
- Đặc điểm: Lối di chuyển theo góc vuông, khu nhập – xuất bố trí ở hai cạnh vuông góc nhau.
 - Ưu điểm: Tận dụng tối đa góc kho, tối ưu lối đi, dễ bố trí các khu vực phụ trợ.
 - Ứng dụng: Thích hợp cho kho có mặt bằng gấp khúc, kho trong khu đô thị hoặc diện tích hẹp.
 

Mẫu sơ đồ kho hình chữ U
- Đặc điểm: Cửa nhập và cửa xuất nằm cùng một mặt, luồng hàng đi theo hình chữ U.
 - Ưu điểm: Tiết kiệm diện tích, thuận tiện kiểm soát hàng ra vào, tăng hiệu quả quay vòng hàng.
 - Ứng dụng: Rất phổ biến trong kho thương mại, kho bán lẻ, hoặc kho có nhu cầu xuất nhập liên tục.
 

Mẫu sơ đồ kho hình chữ T
- Đặc điểm: Có trục chính ở giữa, chia các khu vực lưu trữ, đóng gói, vận chuyển theo nhánh T.
 - Ưu điểm: Phân tách rõ ràng từng khu chức năng, dễ tổ chức quản lý và giám sát hoạt động kho.
 - Ứng dụng: Thường dùng trong kho phân phối lớn, trung tâm logistics, hoặc kho có nhiều nhóm hàng riêng biệt.
 

Mẫu sơ đồ kho 1 cửa
- Đặc điểm: Nhập và xuất hàng cùng diễn ra tại một cửa duy nhất.
 - Ưu điểm: Tiết kiệm chi phí xây dựng, đơn giản trong quản lý, phù hợp vận hành thủ công.
 - Ứng dụng: Dành cho kho nhỏ, cửa hàng, kho lưu trữ cá nhân hoặc kho hàng tạm thời.
 

Mẫu sơ đồ kho hỗn hợp
- Đặc điểm: Kết hợp linh hoạt nhiều dạng bố trí như I, L, U… tùy theo mặt bằng và quy mô kho.
 - Ưu điểm: Linh hoạt, dễ mở rộng, tối ưu hiệu suất cho nhiều loại hàng hóa khác nhau.
 - Ứng dụng: Phù hợp cho trung tâm phân phối lớn, kho đa năng, kho chứa hàng thương mại điện tử.
 

Mẫu sơ đồ kho tối ưu diện tích
- Đặc điểm: Sử dụng hệ thống kệ cao tầng với các dòng kệ tối ưu không gian như kệ Double Deep, kệ Drive In, kệ di động.
 - Ưu điểm: Tăng mật độ lưu trữ, giảm quãng đường vận chuyển, tiết kiệm chi phí thuê mặt bằng.
 - Ứng dụng: Thích hợp cho kho trong khu công nghiệp hoặc doanh nghiệp có lượng hàng lớn nhưng mặt bằng hạn chế.
 

Các mẫu sơ đồ kho phổ biến khác




Trên đây là tổng hợp các mẫu sơ đồ kho hàng phổ biến nhất được áp dụng rộng rãi trong nhiều loại hình kho hàng hiện nay. Tùy theo quy mô, tính chất hàng hóa và mục tiêu sử dụng, mỗi doanh nghiệp có thể lựa chọn hoặc kết hợp linh hoạt các sơ đồ để đạt hiệu quả cao nhất. Một thiết kế sơ đồ kho khoa học không chỉ giúp tối ưu diện tích và luồng di chuyển, mà còn góp phần nâng cao năng suất, giảm chi phí và đảm bảo an toàn vận hành cho toàn bộ hệ thống lưu trữ.
One Tech là địa chỉ uy tín hàng đầu hiện nay chuyên sản xuất và kinh doanh các mẫu giá kệ kho lưu trữ hàng hóa hiện đại, uy tín hàng đầu trên thị trường. Quý khách hàng có nhu cầu vui lòng liên hệ để nhận được tư vấn và báo giá tốt nhất.
				



